物件価格
月々のお支払い例
1,659.77円
※金利1.20% 借入金額:物件価格、借入期間35年
物件の特徴
主な設備
電気
上水道
下水道
都市ガス
主な特徴
3階建以上
◆ 戸建てを買うなら【ハウスドゥ長居公園東】へ! ◆
全国700店舗以上を展開し、売買専門店舗数No.1のハウスドゥグループ。
その中でも当店は、不動産売買に特化した専門店舗として、地域密着サービスを提供しています。
特に長居公園周辺に強く、地元ならではの情報力と提案力が自慢です。学区・周辺環境・資産性など、細かなご希望に対しても的確にご提案可能です。
◇ 新築戸建て・中古住宅
◇ 中古+リフォームのご提案
◇ 投資用物件・収益不動産
◇ 住宅ローン相談・事前審査
◇ 売却・買替え・住み替え相談
ご購入からローン、リフォームまでワンストップで対応可能。お客様専属エージェントが、お客様の理想の住まい探しを全力でサポートします。
さらに、店舗限定の非公開物件も多数ご用意しております。「良い物件が見つからない」とお悩みの方も、ぜひ一度ご相談ください。
◆住宅ローン相談会も随時開催中!
「まずは話だけでも聞いてみたい」そんな方も大歓迎です。
【ハウスドゥ長居公園東】へお問合せください!
無料問い合わせ→【0120-885-123】
物件概要
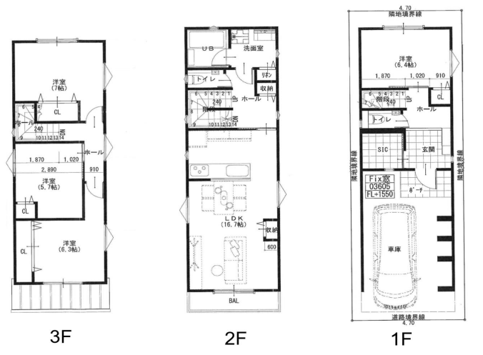
| 価格 | 6,680万円 | 間取り | 4LDK |
|---|---|---|---|
| 物件種別 | 中古一戸建て | ||
| 所在地 | 大阪府大阪市阿倍野区長池町 | ||
| アクセス | JR阪和線『南田辺』 徒歩16分 (約1240m) 大阪市谷町線『田辺』 徒歩15分 (約1200m) |
||
| 建物面積 | 110.07㎡ | 駐車場 | なし |
| 築年月 | 2025年(令和7年)04月築 | ||
| 建物構造 | 木造 3階建 | 工法 | |
| 主要採光 | 南西向 | バルコニー | |
| 保証・評価 | |||
| リフォーム | |||
| 土地面積 | 65.51㎡(19.81坪) | 接道 | |
| 私道 | セットバック | ||
| 地目 | 宅地 | 地勢 | |
| 権利 | 所有権 |
||
| 都市計画 | 市街化区域 |
用途地域 | 2種中高 |
| 建ぺい/容積率 | 60% / 300% | 土地国土法 | |
| 許可番号 | 建築基準法 | ||
| 法令制限 | |||
| 小学区 | 長池小学校 徒歩4分 (約320m) | 中学区 | 昭和中学校 徒歩9分 (約660m) |
| 現況 | 居住中 | 引渡 | 相談 |
| その他費用 | |||
| 周辺環境 | 長池小学校 徒歩4分 (約320m) 昭和中学校 徒歩9分 (約660m) 御堂筋線/西田辺駅 徒歩7分 (約560m) 阪和線鶴ヶ丘駅 徒歩11分 (約820m) 谷町線 田辺駅 徒歩14分 (約1050m) サンディ 南田辺店 徒歩10分 (約740m) 阪急オアシス 西田辺店 徒歩8分 (約640m) 東住吉山坂郵便局 徒歩10分 (約750m) ファミリーマート田辺店 徒歩11分 (約870m) マツモトキヨシ帝塚山店 徒歩16分 (約1260m) |
||
| 備考 | |||
| 物件番号 | 4663193 | 取引態様 | 媒介 |












「購入後すぐに不具合があったらどうしよう・・・」
そんな中古住宅の不安解消をハウスドゥがサポート。
◆住宅設備あんしん保証プラス5つの安心サポート!
◇修理無制限
修理回数制限なしOK!契約期間中は、同じ部位の故障も何度でも修理可能です。
◇出張費・工賃無料
出張費、施工料、技術料0円!メーカー保証対象の修理は全て保証いたします。
◇経年劣化対応
消耗品以外なら、住宅設備の経年劣化による故障、自然故障にも対応。
◇事前審査なし
面倒な事前審査は一切ございません。今すぐといったご要望に対応可能です。
◇24時間365日コール受付
お電話一本で、簡単修理受付。全国対応24時間365日、コールセンターにてお電話受付対応いたします。
◆ハウスドゥなら確かな保証のおまもりDoで充実サポート!
◇3つのおまもりで安心プラス!
1.インスペクション
2.既存住宅保険
3.設備機器保証
※詳細、費用については担当者へお問合せください。
築年数や構造等により保証の対象とならない場合がございますので事前に必ずご確認ください。